(Voor woningen groter dan 300 m² en terrein groter dan 10a werken we op offertebasis. Vul het offerteformulier in dat je vindt op deze pagina en wij antwoorden je a.s.a.p.)
Let op: onze plannen zijn geen officiële architectenplannen. Ze dienen als praktische en betaalbare basis waarop jouw erkend architect kan verder bouwen, bijvoorbeeld voor een regularisatie.
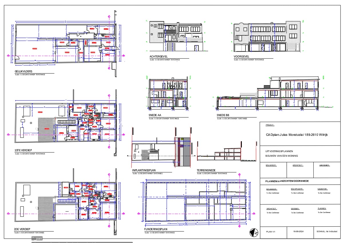
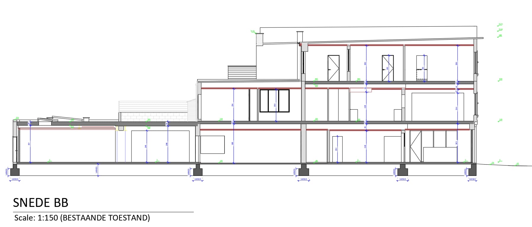
As-builtplannen laten opmaken van bestaande woning met inplantingsplan en terreinprofiel
Betaalbare architectplannen nodig van jouw bestaande woning? Regel jouw woningregularisatie en/of verbouwing met precisie Een woning regulariseren of verbouwen? Dan is het is essentieel om de actuele toestand nauwkeurig vast te leggen. Onze service omvat een gedetailleerde scan van de volledige woning, zowel binnen als buiten, met onze state-of-the-art 3D-scanner. Na deze scanning leggen we de as-built situatie van de woning nauwkeurig vast in 2D- en 3D-model (zowel in pdf, .dwg, .skp en .rvt). We leveren ook het .ifc bestand aan, zodat de tekeningen geopend kunnen worden in eender welk tekenprogramma, zoals bijvoorbeeld Sketchup. Ook leveren we een pdf op met de 2D plannen. Deze documentatie van de architecturale structuur van bestaande gebouwen is cruciaal voor elke renovatie of aanpassing.
Virtuele tour en fotoreportage
Je krijgt ook een fotoreportage en een de link naar de virtuele tour (bekijk voorbeeldtour). Dit geeft je de mogelijkheid 24/7 de ruimtes in 360° virtueel te bezoeken. (De tour blijft 3 maanden online. Na deze 3 maanden vragen we een her-activiatiekost van 30 euro excl. om deze nog eens 3 maanden actief te laten staan.) Van deze plannen, kan vertrokken worden om verbouwingswerken uit te tekenen of een regularisatie in te dienen. Jouw architect kan verder werken op de aangeleverde plannen. Elke architect werkt anders, dus de kans bestaat dat we nog aanpassingen moeten uitvoeren aan de plannen. Dit is geen enkel probleem en doen we kosteloos. Je moet rekening houden met een afwijking van ±2 cm op 10m. Gebruik deze plannen nooit om maatwerk te bestellen. Ook voor meubels raden we aan toch even na te meten.
Ben je zeker van de oppervlakte? Indien de woning groter is dan 300m², wordt dit verschil achteraf nog verrekend doormiddel van een factuur en dit aan 6,64 euro incl. per m² wat de woning betreft. Terrein op offertebasis.
Je kan hier een voorbeelddossier terugvinden.
Ook inbegrepen in deze prijs:
- Inplantingsplan
- Terreinprofiel
Perceel groter dan 10a? Dan is de prijs op aanvraag.
Opgelet: wij zijn geen beëdigd landmeter.
Boek jouw 3D Opmeting in 4 eenvoudige stappen:
Stap 1: Je drukt op de boekingsbutton
Stap 2: Je geeft aan op welke datum je de opmeting wenst uit te laten voeren. Je krijgt een bevestigingsmail met de datum, het uur volgt pas later (max. 2 dagen voor de datum van de inspectie).
Stap 3: Jouw voorkeur komt in ons systeem terecht en onze online agendatool bekijkt op welk uur we de inspectie kunnen komen uitvoeren. Jij krijgt ongeveer 48 uur na boeking jouw exacte uur door waarop de inspectie uitgevoerd zal worden.
Stap 4: De opmeting wordt uitgevoerd en jij ontvangt jouw ontwerp van zodra onze binnendienst dit verwerkt heeft (richttijd is 10 werkdagen, maar kan in drukke periodes of bij grotere projectenlanger duren).















