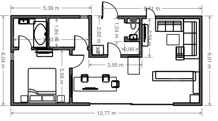
Op zoek naar een duidelijke vloerplannen voor je woning of gebouw? Bij ECOTEST kan je terecht voor het professioneel laten opmaken van 2D vloerplannen.
Onze vloerplannen worden opgesteld op basis van een plaatsbezoek, en zijn ideaal voor vastgoedprofessionals en particulieren die snel een vloerplan nodig hebben.
De vloerplannen worden aangeleverd in .png, .pdf, .dwg en .dxf formaat.
Afwijking van +- 5 cm mogelijk op een afstand van 10m.
Deze plannen zijn dus niet geschikt om op basis hiervan maatwerk en meubels te bestellen.
GRATIS EXTRA!
Je kan op aanvraag een 3D model (poppenhuis) ontvangen van jouw woning. Zowel van de binnenkant als de buitenkant.
Hoe aanvragen?
Deel aan de keurder ter plaatse en voor de opmeting begint mee dat je de poppenhuisjes achteraf wenst te ontvangen.
Hoe boeken?
Stap 1: Klik op de boekingsbutton.
Stap 2: Kies een datum en geef vervolgens aan welk uur jouw voorkeur heeft.
Je krijgt na het boeken een bevestigingsmail met de datum, het definitieve uur volgt pas later (max. 2 dagen voor de datum van de opmeting).
Stap 3: Doorloop de rest van de stappen en vergeet zeker jouw boeking op het einde niet te bevestigen!
Stap 4: Je ontvangt na het boeken een factuur van ons dat binnen de vermeldde levertermijn betaald dient te worden.








